Copyright © Changzhou Chuangling Machinery Co., Ltd. All Rights Reserved. Web Development by Wangke
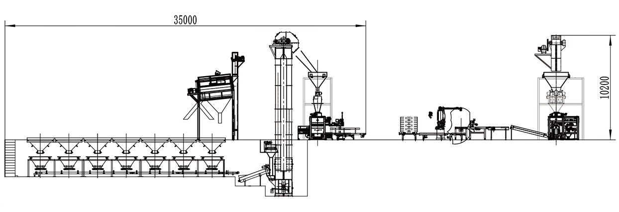
The dosing machine is used as a form of reducing dosing, which is a bucket type weighing and feedingDynamic weighing batching device combined with control. It is measured by the weighing sensor, the instrument samples the weighing sensor signal twice, the instrument can output signals, control the frequency conversion governor, so as to control the feed speed until the set value (kg / h) is reached, and can automatically track and adjust to maintain a constant feed amount.


Let our knowledgeable and professional team guide you
Contact